Cần Bán Lô Đất Rộng Tại Vị Trí Đắc Địa Thuộc Đường Ngô Gia Tự, Đông Tr
Ngô Gia Tự, Phường Đông Triều, Thị Xã Đông Triều, Quảng Ninh
Mức giá
42.5 tỷDiện tích
1378 m2
Thông tin mô tả
Khu vực:Bán đất tại Huyện Đông Triều
Thông tin mô tảChính chủ cần bán lô đất rộng vị trí đắc địa khu Vĩnh Tân, phường Mạo Khê, thành phố Đông Triều, tỉnh Quảng Ninh.
Thông tin pháp lý & Diện tích:
Diện tích: 1378,8 m² (theo sổ đỏ).
Mục đích sử dụng: Đất đô thị (ODT).
Thời hạn sử dụng: Lâu dài.
Pháp lý: Sổ đỏ chính chủ, cấp năm 2025, sang chóng.
Đặc điểm & Tiềm năng lô đất:
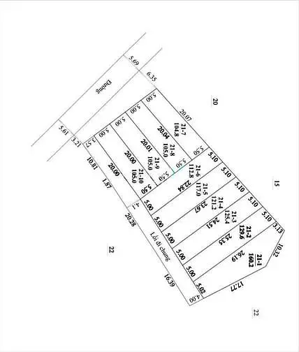
Lô đất vuông vắn, địa đẹp, sơ đồ dự kiến phân lô (xem ảnh đính kèm), hợp cho các nhà đầu tư phân lô bán nền xây dựng biệt thự nhà vườn rộng rãi.
Vị trí trung tâm phường Mạo Khê, thành phố trẻ Đông Triều, khu vực phát triển mạnh mẽ tiềm năng tăng cao.
Hạ tầng giao thông thuận tiện, đường bê tông rộng rãi, ô tô di chuyển tận đất dàng.
Khu vực dân cư hiện hữu, văn minh, an ninh
Gần các tiện ích công cộng: trường học, chợ, trung tâm y tế, khu vui chơi giải trí...
Giá bán: (Giá cho khách thiện chí, liên hệ trực tiếp thương lượng).
Đặc điểm bất động sản
A
Quang Anh
Ngày đăng:
19-01-2026Ngày hết hạn:
21-02-2026Loại tin đăng:
Tin thườngMã tin:
6094193
Mọi người xem thêm trong khu vực
Dựa trên tìm kiếm của bạn, có thể bạn quan tâm:
Quý vị đang xem nội dung tin rao "Cần Bán Lô Đất Rộng Tại Vị Trí Đắc Địa Thuộc Đường Ngô Gia Tự, Đông Tr" - Mã tin 6094193. Mọi thông tin, nội dung liên quan tới tin rao này là do người đăng tin đăng tải và chịu trách nhiệm. 1homez.com luôn cố gắng để các thông tin được hữu ích nhất cho quý vị tuy nhiên 1homez.com không đảm bảo và không chịu trách nhiệm về bất kỳ thông tin, nội dung nào liên quan tới tin rao này. Trường hợp phát hiện nội dung tin đăng không chính xác, Quý vị hãy thông báo và cung cấp thông tin cho Ban quản trị 1homez.com để được hỗ trợ nhanh và kịp thời nhất.




