Cần Bán 1 Cặp Đất Đường 10.5 Nguyễn Chánh - Thông Biển
Đường Nguyễn Chánh, Phường Hòa Khánh Bắc, Quận Liên Chiểu, Đà Nẵng
Mức giá
Thỏa thuậnDiện tích
202 m2
Thông tin mô tả
Khu vực:Bán căn hộ chung cư tại Phường Hòa Khánh Bắc
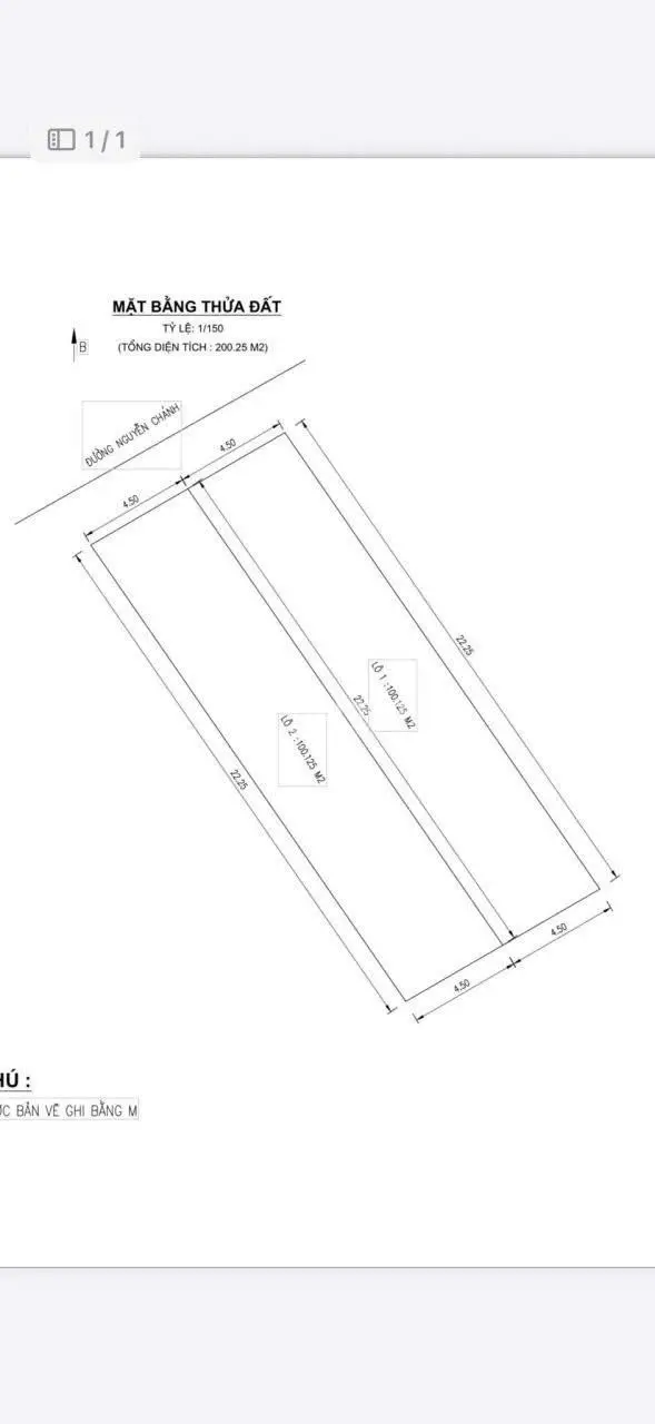
Cần bán 1 cặp đất đường 10.5 Nguyễn Chánh - thông biển
-Liên Chiểu, Đà Nẵng
-DTĐ 2 lô: 202m2 (9x22)m
-Đường: 10,5m, lề 7m
-Hướng: Tây Bắc
-Vị trí: bãi tắm biển, khu đông dân cư kinh doanh buôn bán sầm uất công viên nước Mikazuki, hợp đầu tư kinh doanh. trục đường 10,5m thông Nguyễn Lương Bằng Nguyễn Tất Thành. vị trí kinh doanhnhà hàng, căn hộ, khách sạn, homestay, nhà ...
Gía bán 2 lô = 16 tỷ. bán lẽ lô
Đặc điểm bất động sản
K
Nguyễn Hữu Kiệt
Ngày đăng:
08-11-2025Ngày hết hạn:
21-12-2025Loại tin đăng:
Tin thườngMã tin:
6069465
Mọi người xem thêm trong khu vực
Dựa trên tìm kiếm của bạn, có thể bạn quan tâm:
Quý vị đang xem nội dung tin rao "Cần Bán 1 Cặp Đất Đường 10.5 Nguyễn Chánh - Thông Biển" - Mã tin 6069465. Mọi thông tin, nội dung liên quan tới tin rao này là do người đăng tin đăng tải và chịu trách nhiệm. 1homez.com luôn cố gắng để các thông tin được hữu ích nhất cho quý vị tuy nhiên 1homez.com không đảm bảo và không chịu trách nhiệm về bất kỳ thông tin, nội dung nào liên quan tới tin rao này. Trường hợp phát hiện nội dung tin đăng không chính xác, Quý vị hãy thông báo và cung cấp thông tin cho Ban quản trị 1homez.com để được hỗ trợ nhanh và kịp thời nhất.




